Sanierung Spissstrasse
Abschnitt: Hotel Bahnhof - Einmündung "untere Mattenstrasse"
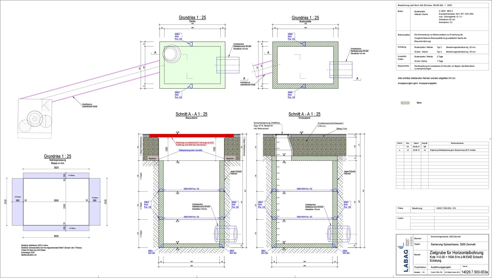
Der Gemeinderat hatte beschlossen zwischen dem Hotel Bahnhof und der Einmündung "untere Mattenstrasse" die Umstellung auf das Trennsystem zu realisieren. Dafür muss eine neue Meteorwasserleitung PP DN 630 auf einer Länge von ca. 145 m und in einer Tiefe von 4.10 m bis ca. 5.40 m verlegt werden. Gleichzeitig soll die Trinkwasserleitung im untern Abschnitt ersetzt und neu im Strassenkörper verlegt werden.
Die Verlegung der Meteorwasserleitung wurde mittels einer gezielten Horizontalbohrung bewerkstelligt. Diese anspruchsvolle aber auch raffinierte Bohrtechnik nennt sich "Microtunneling". Die Technik ist eine Kombination aus Press- und HDD-Bohren. Dieses Bohrverfahren kann sowohl bei weichen Böden als auch bei Gestein angewendet werden. Die Bohrleisten beträgt ca. 10 m Vortrieb pro Tag.
Arbeitsverlauf und Etappen der "Microtunneling" Lösung
Die Startgrube liegt beim Ölumschlagplatz und die Zielgrube kommt beim Anschluss beim Hotel Bahnhof zu stehen. Daraus resultiert eine Bohrlänge von ca. 105 m.
Bei der ersten Bauzeitetappe (Sept./Okt. 2014) wurde Start- und Zielgrube gebaut und die Bohrung erstellt. Wobei die Zielgrube später als Anschlussschacht genutzt wurde.
Bei der zweiten Bauzeitetappe (Frühjahr 2015) wurde der Zusammenschluss zwischen der Startgrube und dem Anschlussschacht bei der Einmündung "untere Mattenstrasse" verwirklicht.




